taras: 12,41m2, widok na zieleń, dobra komunikacja

lokalizacja: Poznań, Ziębicka

564 836,00 PLN

13 950,01 PLN

Opis nieruchomości

Przestronne 2-pokojowe mieszkanie z dużym tarasem w dzielnicy, która zapewnia dostęp do zieleni i jednocześnie dobrą komunikację z centrum, oraz innymi częściami Poznania.



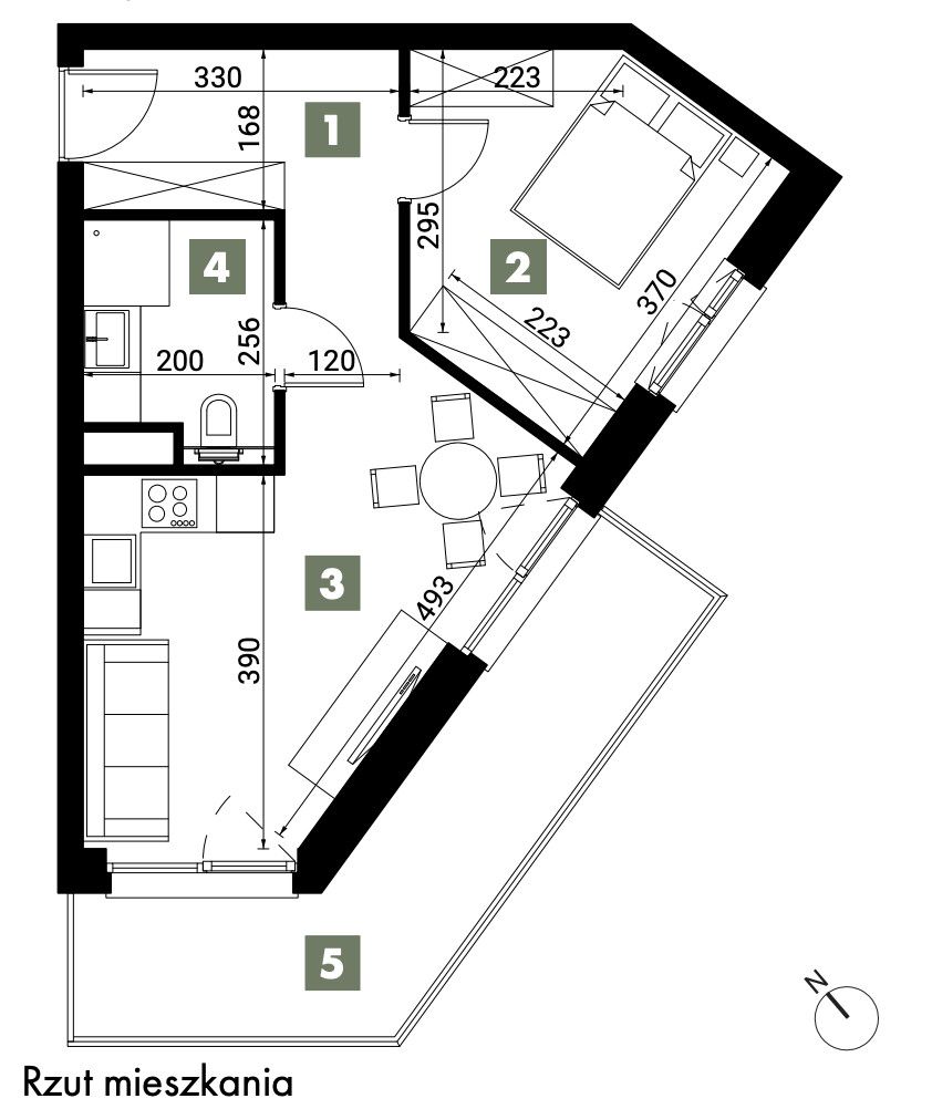
Układ mieszkania:



  • salon z aneksem - 17,43 m2

  • pokój - 11,44 m2

  • łazienka - 4,48 m2

  • korytarz - 7.14 m2

  • balkon -12,41 m2




Lokalizacja:

Grunwald - okolica jest pełna terenów zielonych - otacza ją wiele drzew,
niedaleko płynie Potok Junikowski.
Mając zieleń w pobliżu masz także dostęp do wygód, których oczekujesz od miasta.
Bliskość sklepów, lokali usługowych, restauracji, barów, komunikacji


w pobliżu:



  • Żabka, Biedronka, Lidl, Aldi,

  • tramwaj - 600 metrów,

  • autobus - 150 metrów,

  • staw Baczkowski - 1,7 km,

  • liceum - 4 minuty,

  • przedszkole - 8 minut.






Atuty Inwestycji



  • ogrzewanie podłogowe w łazience,

  • wyszpachlowane i pomalowane na biało ściany,

  • szlaban otwierany komórką,

  • rowerownia,

  • rolety elektryczne,

  • teren jest ogrodzony,

  • domofon.


Mieszkania są już gotowe do odbioru

Możesz dokupić miejsce postojowe lub komórkę lokatorską.



Spełnij marzenia o nowym mieszkaniu.
Zainteresowany? Zadzwoń, napisz

Monika Skotarczak. +48798601102


Dodatkowo


  • pomagamy bezpłatnie w uzyskaniu najkorzystniejszej oferty kredytu hipotecznego,

  • możliwość wykończenia mieszkania pod klucz.






ZERO prowizji, brak PCC.

...
Oferta wystawiona przez Biuro nieruchomości Falcon Estate.
Prezentowane w serwisie oferty nie stanowią oferty handlowej w rozumieniu art. 66 Kodeksu Cywilnego i mogą być nieaktualne.

Plan Nieruchomości

Kontakt do opiekuna:

Falcon Estate

Monika Skotarczak
Nieprawidłowy adres E-mail
Mapa

Strona korzysta z plików cookie w celu realizacji usług zgodnie z Polityką prywatności. Możesz określić warunki przechowywania lub dostępu do cookie w Twojej przeglądarce.