3 pokoje z dużym balkonem, tramwaj, zieleń

lokalizacja: Poznań, Ziębicka

1 088 805,00 PLN

14 500,00 PLN

Opis nieruchomości

Przytulne 3 pokojowe mieszkanie z dużym balkonem w dzielnicy, która zapewnia dostęp do zieleni i jednocześnie dobrą komunikację z centrum, oraz innymi częściami Poznania.



Zadzwoń i umów się na obejrzenie inwestycji +48798601102





  • Bezpośrednio od dewelopera

  • Brak PCC

  • Bez prowizji







Lokalizacja

Górczyn, to miejsce gdzie w pobliżu masz do dyspozycji największy park w tej części miasta. Jednocześnie dostęp do wygód, których oczekujesz od miasta.
Bliskość sklepów, lokali usługowych, restauracji, barów, komunikacji


  • teren zielony - 25 minut,

  • w pobliżu: Żabka, Biedronka, Lidl, Aldi,

  • tramwaj - 600 metrów,

  • autobus - 150 metrów,

  • staw Baczkowski - 1,7 km/17 minut,

  • liceum - 4 minuty

  • przedszkole - 8 minut.








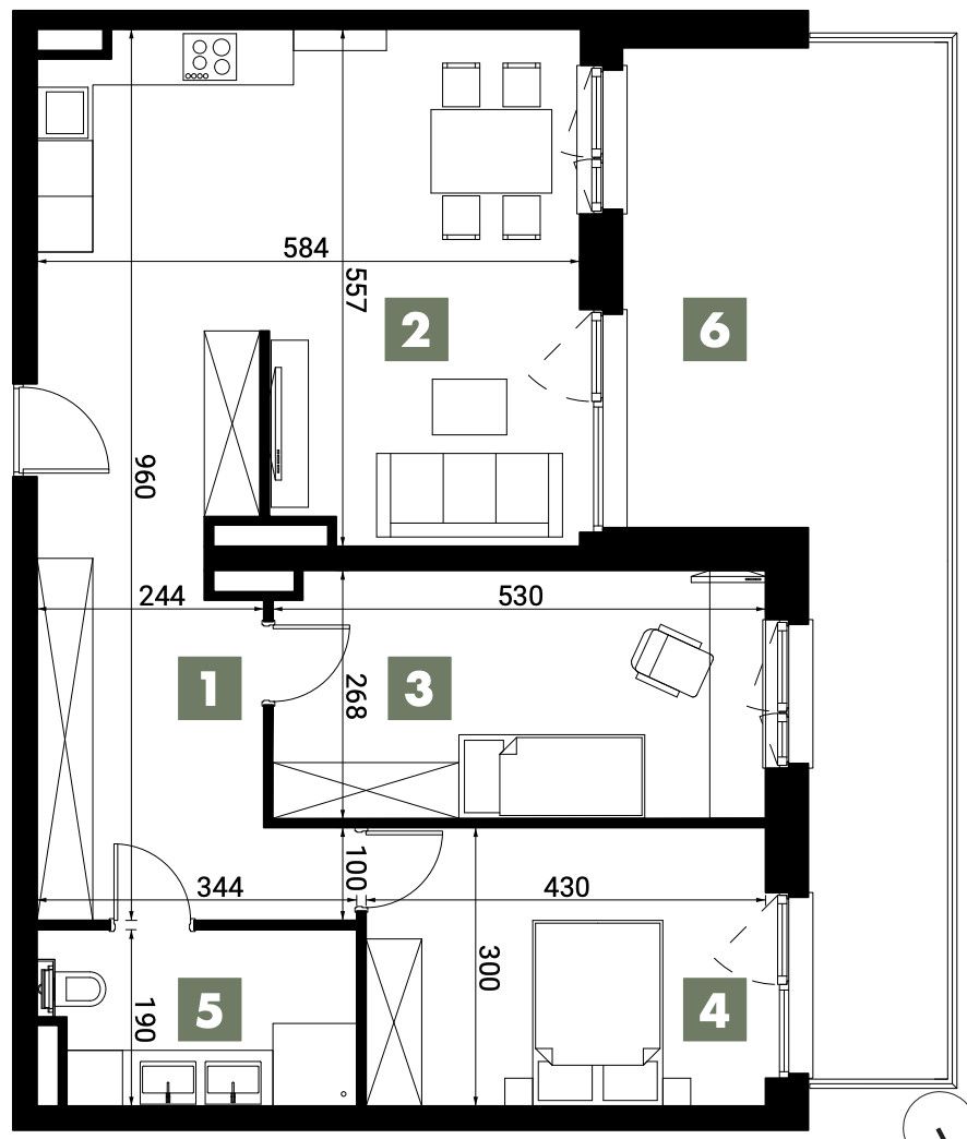
Układ mieszkania:


  • salon z aneksem - 26,19 m2

  • pokój - 14,05 m2

  • pokój - 12,90 m2

  • łazienka - 6,11 m2

  • korytarz - 15,84 m2

  • garderoba - 27,10 m2

  • balkon




(zdjęcia dodane go ogłoszenia, są zdjęciami poglądowymi)




Atuty inwestycji


  • wyszpachlowane i pomalowane na biało

  • ogrzewanie podłogowe w łazience,

  • szlaban otwierany komórką,

  • rowerownia,

  • rolety elektryczne,

  • teren jest ogrodzony,

  • domofon.








Możesz dokupić miejsce postojowe lub komórkę lokatorską.

To miejsce, które daje Ci spokój, komfort i codzienną wygodę.
Mieszkania jest oddane do użytku.


Spełnij marzenia o nowym mieszkaniu.
Zainteresowany? Zarezerwuj mieszkanie już teraz.


W swoim portfolio, posiadam również mieszkania z innych inwestycji w Poznaniu i pobliskich miejscowościach.

Monika Skotarczak. +48798601102


Dodatkowo


  • pomagamy bezpłatnie w uzyskaniu najkorzystniejszej oferty kredytu hipotecznego,

  • możliwość wykończenia mieszkania pod klucz.






ZERO prowizji, brak PCC.

...
Oferta wystawiona przez Biuro nieruchomości Falcon Estate.
Prezentowane w serwisie oferty nie stanowią oferty handlowej w rozumieniu art. 66 Kodeksu Cywilnego i mogą być nieaktualne.

Plan Nieruchomości

Kontakt do opiekuna:

Falcon Estate

Monika Skotarczak
Nieprawidłowy adres E-mail
Mapa

Strona korzysta z plików cookie w celu realizacji usług zgodnie z Polityką prywatności. Możesz określić warunki przechowywania lub dostępu do cookie w Twojej przeglądarce.