apartament, tramwaj, zielona okolica

lokalizacja: Poznań, Naramowicka

348 100,00 PLN

12 300,35 PLN

Opis nieruchomości

Ogłoszenie sprzedaży apartamentu w Poznaniu




  • Bezpośrednio od dewelopera

  • Brak PCC

  • Bez prowizji








Lokalizacja


Naramowice, to doskonale miejsce, jeśli cenisz sobie bliskość przyrody i dostęp do miejskich udogodnień.
Zakola Warty, to tylko klika minut spacerem.

W pobliżu:


  • sklepy, restauracje, urocze knajpki i punkty usługowe.




W najbliższej okolicy znajdują się szkoły i przedszkola.
Dzięki powstaniu nowej linii tramwajowej, komunikacja z centrum miasta jest szybka i sprawna.



  • autobus - 1 minuta

  • tramwaj - 3 minuty

  • przychodnia - 5 minut

  • tereny zielone - 5 minut

  • szkoła - 5 minut

  • sklepy - 1 minut








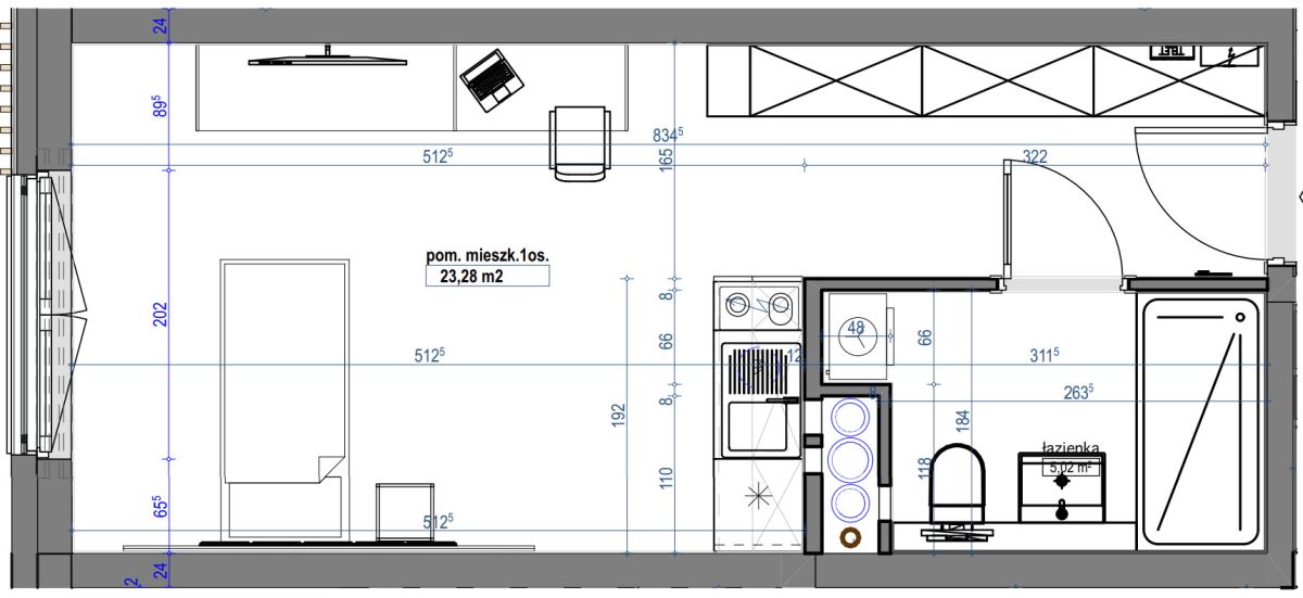
Układ mieszkania


  • salon + aneks kuchenny - 23,28 m2

  • łazienka - 5,02 m2




(zdjęcia dodane go ogłoszenia, są
zdjęciami poglądowymi)



w inwestycji


  • windy

  • domofon

  • rowerownia

  • CO miejskie








To miejsce, które daje Ci spokój, komfort i codzienną wygodę.



Termin oddania: I kwartał 2026


Spełnij marzenia o nowym mieszkaniu.
Zainteresowany? Zarezerwuj mieszkanie już teraz.


Monika Skotarczak. +48798601102

ZERO prowizji, brak PCC

...
Oferta wystawiona przez Biuro nieruchomości Falcon Estate.
Prezentowane w serwisie oferty nie stanowią oferty handlowej w rozumieniu art. 66 Kodeksu Cywilnego i mogą być nieaktualne.

Plan Nieruchomości

Kontakt do opiekuna:

Falcon Estate

Monika Skotarczak
Nieprawidłowy adres E-mail
Mapa

Strona korzysta z plików cookie w celu realizacji usług zgodnie z Polityką prywatności. Możesz określić warunki przechowywania lub dostępu do cookie w Twojej przeglądarce.