2 pokoje, ogródek, zielono, autobus. Bez prowizji!

lokalizacja: Poznań, Jasielska

425 884,80 PLN

11 840,00 PLN

Opis nieruchomości

Ogłoszenie sprzedaży 2 pokojowego mieszkania z ogródkiem w Poznaniu


Zadzwoń i umów się na obejrzenie inwestycji +48798601102




  • Bezpośrednio od dewelopera

  • Brak PCC

  • Bez prowizji







Lokalizacja

Podolany, to lokalizacja zapewniająca bliskość terenów zielonych, a jednocześnie jest dobrze skomunikowana z centrum.



  • autobus - 3 minuty

  • przychodnia - 5 minut

  • tereny zielone - 5 minut

  • szkoła - 5 minut

  • sklepy - 1 minuta








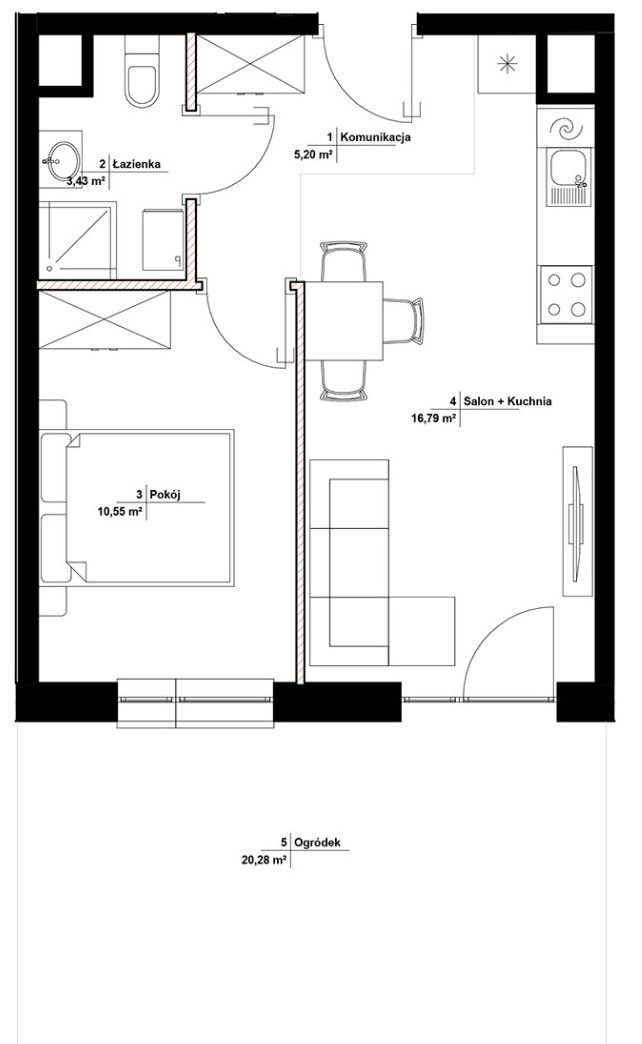
Układ mieszkania


  • salon + aneks kuchenny - 16,79 m2

  • pokój - 10,55 m2

  • łazienka - 3,43 m2

  • przedpokój - 5,20 m2

  • ogródek - 20,28 m2





(zdjęcia dodane go ogłoszenia, są
zdjęciami poglądowymi)


w inwestycji


  • windy

  • domofon

  • monitoring

  • wewnętrzny plac zabaw

  • CO miejskie






Termin oddania: I kwartał 2026

Do ceny należy doliczyć miejsce postojowe w hali garażowej.

To miejsce, które daje Ci spokój, komfort i codzienną wygodę.


Spełnij marzenia o nowym mieszkaniu.
Nie czekaj, Zadzwoń, napisz


Monika Skotarczak. +48798601102

ZERO prowizji, brak PCC

...
Oferta wystawiona przez Biuro nieruchomości Falcon Estate.
Prezentowane w serwisie oferty nie stanowią oferty handlowej w rozumieniu art. 66 Kodeksu Cywilnego i mogą być nieaktualne.

Plany Nieruchomości

Kontakt do opiekuna:

Falcon Estate

Monika Skotarczak
Nieprawidłowy adres E-mail
Mapa

Strona korzysta z plików cookie w celu realizacji usług zgodnie z Polityką prywatności. Możesz określić warunki przechowywania lub dostępu do cookie w Twojej przeglądarce.