2 pokoje, ustawne, balkon, zieleń, cisza,

lokalizacja: Poznań, Jasielska

439 942,00 PLN

12 040,01 PLN

Opis nieruchomości

Ogłoszenie sprzedaży 2 pokoje z balkonem w Poznaniu


Zadzwoń i umów się na obejrzenie inwestycji +48798601102




  • Bezpośrednio od dewelopera

  • Brak PCC

  • Bez prowizji






Lokalizacja

Podolany, to lokalizacja zapewniająca bliskość terenów zielonych, a jednocześnie jest dobrze skomunikowana z centrum.


  • autobus - 1 minuta

  • przychodnia - 5 minut

  • tereny zielone - 5 minut

  • szkoła - 5 minut

  • sklepy - 1 minuta







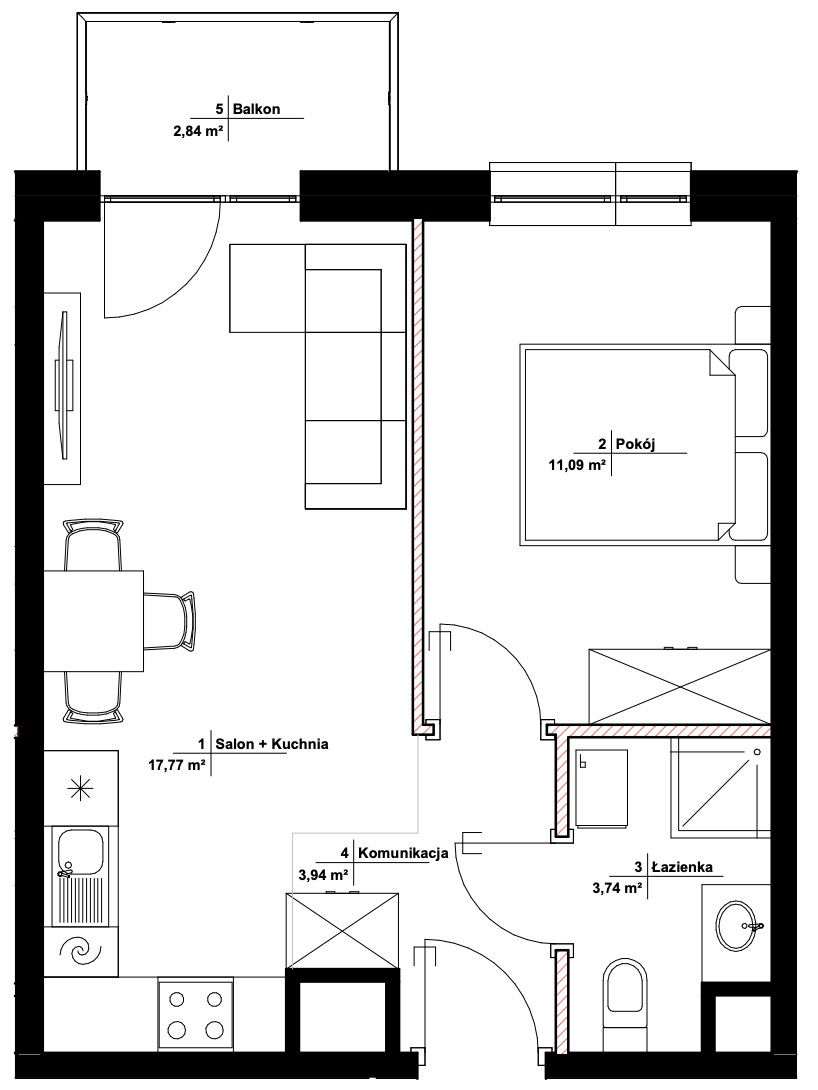
Układ mieszkania


  • salon + aneks kuchenny - 17,77 m2

  • pokój - 11,09 m2

  • przedpokój - 3,94 m2

  • łazienka - 3,74 m2

  • balkon - 2,84 m2






(zdjęcia dodane go ogłoszenia, są zdjęciami poglądowymi)



w inwestycji


  • windy

  • domofon

  • monitoring

  • wewnętrzny plac zabaw

  • CO miejskie









Mieszkanie oddane do użytku.
To miejsce, które daje Ci spokój, komfort i codzienną wygodę.

Do ceny należy doliczyć miejsce postojowe w hali garażowej.




Spełnij marzenia o nowym mieszkaniu.
Zainteresowany? Zadzwoń, napisz.


W swoim portfolio, posiadam również mieszkania z innych inwestycji w Poznaniu i pobliskich miejscowościach.

Monika Skotarczak. +48798601102

ZERO prowizji, brak PCC

...
Oferta wystawiona przez Biuro nieruchomości Falcon Estate.
Prezentowane w serwisie oferty nie stanowią oferty handlowej w rozumieniu art. 66 Kodeksu Cywilnego i mogą być nieaktualne.

Plany Nieruchomości

Kontakt do opiekuna:

Falcon Estate

Monika Skotarczak
Nieprawidłowy adres E-mail
Mapa

Strona korzysta z plików cookie w celu realizacji usług zgodnie z Polityką prywatności. Możesz określić warunki przechowywania lub dostępu do cookie w Twojej przeglądarce.