4 pokoje z dwoma balkonami, wykończone, zieleń, 0%

lokalizacja: Poznań, Jasielska

998 239,00 PLN

12 190,00 PLN

Opis nieruchomości

Ogłoszenie sprzedaży 4 pokojowego mieszkania z dwoma balkonami w Poznaniu.
Mieszkanie jest wykończone pod klucz, gotowe do zamieszkania.

Zadzwoń i umów się na obejrzenie inwestycji +48798601102




  • Bezpośrednio od dewelopera

  • Brak PCC

  • Bez prowizji






Lokalizacja

Podolany, to lokalizacja zapewniająca bliskość terenów zielonych, a jednocześnie jest dobrze skomunikowana z centrum.



  • autobus - 1 minuta

  • przychodnia - 5 minut

  • tereny zielone - 5 minut

  • szkoła - 5 minuta

  • sklepy - 1 minuta






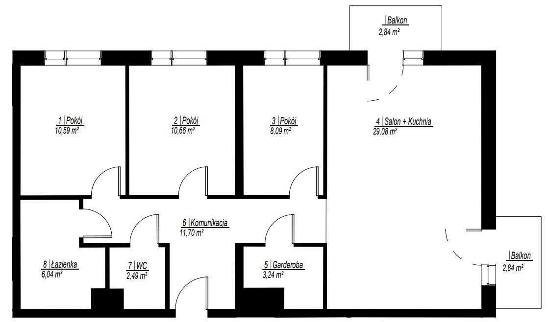
Układ mieszkania


  • salon + aneks kuchenny - 29,49 m2

  • pokój - 10,59 m2

  • pokój - 10,66 m2

  • pokój - 8,08 m2

  • przedpokój - 11,70 m2

  • garderoba - 3,24 m2

  • WC - 2,49 m2

  • łazienka - 6,04 m2

  • balkon - 2,84 m2

  • balkon - 2,84 m2





(zdjęcia dodane go ogłoszenia, są zdjęciami poglądowymi)




w inwestycji


  • windy

  • domofon

  • monitoring

  • wewnętrzny plac zabaw

  • CO miejskie







To miejsce, które daje Ci spokój, komfort i codzienną wygodę.



Termin oddania: wykończone pod klucz, gotowe do zamieszkania.
Do ceny należy doliczyć miejsce postojowe w hali garażowej.




Spełnij marzenia o nowym mieszkaniu.
Zainteresowany? Zarezerwuj mieszkanie już teraz.


W swoim portfolio, posiadam również mieszkania z innych inwestycji w Poznaniu i pobliskich miejscowościach.


Monika Skotarczak. +48798601102

ZERO prowizji, brak PCC

...
Oferta wystawiona przez Biuro nieruchomości Falcon Estate.
Prezentowane w serwisie oferty nie stanowią oferty handlowej w rozumieniu art. 66 Kodeksu Cywilnego i mogą być nieaktualne.

Plany Nieruchomości

Kontakt do opiekuna:

Falcon Estate

Monika Skotarczak
Nieprawidłowy adres E-mail
Mapa

Strona korzysta z plików cookie w celu realizacji usług zgodnie z Polityką prywatności. Możesz określić warunki przechowywania lub dostępu do cookie w Twojej przeglądarce.