kawalerka z balkonem, zielone tereny. Bez prowizji

lokalizacja: Poznań, Jasielska

363 244,00 PLN

13 614,84 PLN

Opis nieruchomości

Ogłoszenie sprzedaży kawalerki z balkonem w Poznaniu


Zadzwoń i umów się na obejrzenie inwestycji +48798601102




  • Bezpośrednio od dewelopera

  • Brak PCC

  • Bez prowizji







Lokalizacja

Podolany, to lokalizacja zapewniająca bliskość terenów zielonych, a jednocześnie jest dobrze skomunikowana z centrum.



  • autobus - 1 minuta

  • przychodnia - 5 minut

  • tereny zielone - 5 minut

  • szkoła - 5 minut

  • sklepy - 1 minuta






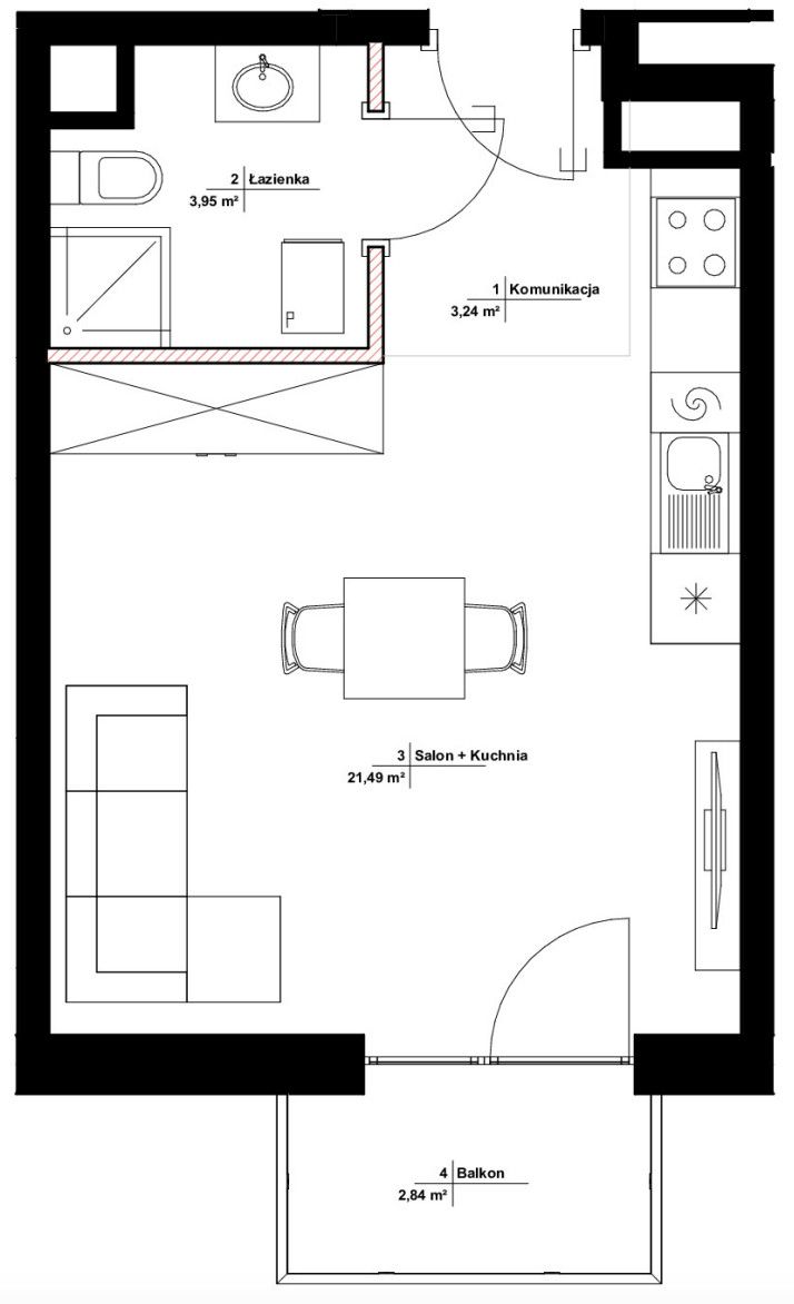
Układ mieszkania


  • salon + aneks kuchenny - 21,49 m2

  • przedpokój 3,95 m2

  • łazienka 3,24 m2

  • balkon 2,84 m2




(zdjęcia dodane go ogłoszenia, są zdjęciami poglądowymi)



w inwestycji


  • windy

  • domofon

  • monitoring

  • CO miejskie







To miejsce, które daje Ci spokój, komfort i codzienną wygodę.
Do ceny należy doliczyć miejsce postojowe w hali garażowej.



Spełnij marzenia o nowym mieszkaniu.
Zainteresowany? Zadzwoń, napisz.


W swoim portfolio, posiadam również mieszkania z innych inwestycji w Poznaniu i pobliskich miejscowościach.

Monika Skotarczak. +48798601102

ZERO prowizji, brak PCC

...
Oferta wystawiona przez Biuro nieruchomości Falcon Estate.
Prezentowane w serwisie oferty nie stanowią oferty handlowej w rozumieniu art. 66 Kodeksu Cywilnego i mogą być nieaktualne.

Plan Nieruchomości

Kontakt do opiekuna:

Falcon Estate

Monika Skotarczak
Nieprawidłowy adres E-mail
Mapa

Strona korzysta z plików cookie w celu realizacji usług zgodnie z Polityką prywatności. Możesz określić warunki przechowywania lub dostępu do cookie w Twojej przeglądarce.